
MPM4700型智能液位變送器是一款全不銹鋼設計全密封潛入式智能化液位測量儀表。該產品選用高穩定、高可靠性壓阻式OEM壓力傳感器及高精度的智能化變送器處理電路,采用精密數字化溫度補償技術及非線性修正技術,是一款高精度液位測量產品。防水電纜與外殼密封連接,通氣管在電纜內,可長期投入液體中使用。一體化的結構和標準化的輸出信號,為現場使用和自動化控制提供了方便。該產品以兩線制方式工作,體積小巧、重量輕、易安裝,使用方便,可直接替代兩線制模擬4~20mADC輸出變送器。

產品特點
•4~20mADC兩線制電流輸出;
•采用數字溫度補償及非線性修正技術;
•具備RS485通訊接口或HART®協議(可選);
•支持組網應用;
•全不銹鋼結構設計,體積小,重量輕;
•特殊要求可定做,適應各種場合應用;
•產品已取得RoHS認證。
性能參數
|
基本量程(mH2O) |
3.5 |
7 |
10 |
20 |
35 |
70 |
100 |
200 |
|
過壓(mH2O) |
5 |
10 |
15 |
30 |
50 |
100 |
150 |
300 |
|
注:量程縮放最小為基本量程的1/5 |
||||||||
|
綜合精度①② |
±0.075%FS(最小) ±0.1%FS(典型) ±0.25%FS(最大) |
|
長期穩定性 |
±0.2%FS/年 |
|
補償溫度③ |
|
|
工作溫度 |
|
|
存儲溫度 |
|
|
供 電 |
(8~28)VDC(RS485接口型),(12~30)VDC(HARTâ型) |
|
輸 出 |
(4~20)mADC |
|
RS485接口/HART®協議,可選 |
|
|
負載能力 |
(4~20)mADC輸出,(U-8V/12V)/ |
|
RS485總線可掛接99個變送器 |
|
|
電氣連接 |
DIN43650 4芯插頭(內置RS485插座) |
|
7芯插頭座(適用于現場RS485接口輸出) |
|
|
Φ |
|
|
絕 緣 |
100MΩ/50V |
|
振 動 |
|
|
沖 擊 |
|
|
防護等級 |
IP68 |
|
介質兼容性 |
膜片:不銹鋼 |
|
殼體:不銹鋼1Cr18Ni9Ti |
|
|
O形密封圈:氟橡膠 |
|
|
重 量 |
約 |
①綜合精度:包含非線性、遲滯、重復性及溫度誤差。
②3.5mH2O和7mH2O的液位變送器,經過量程縮放后,綜合精度典型值為±0.5%FS。
③特殊溫度范圍可與廠家協商。
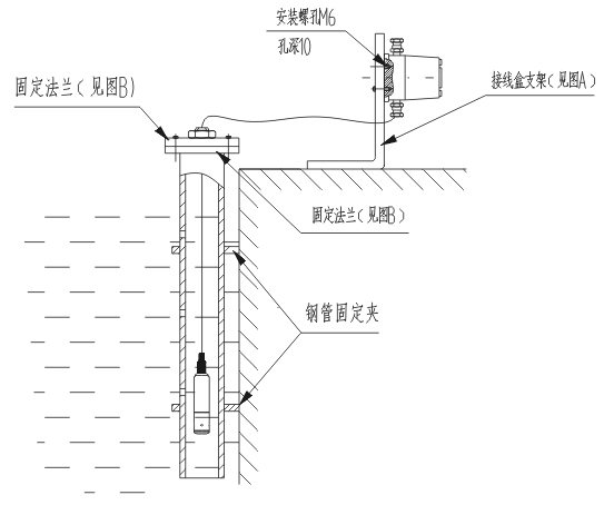
外形結構


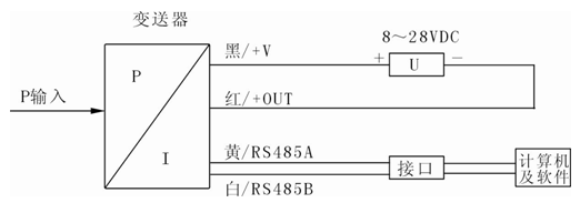
電氣連接
變送器與外部通過電纜或接線盒進行電氣連接。
|
導線顏色 |
端子號 |
功能定義 |
|
黑線 |
2 |
+V |
|
紅線 |
1 |
OUT/GND |
|
白線 |
4 |
RS485B |
|
黃線 |
3 |
RS |

a)、二線制4~20mADC輸出電氣連接方法如下圖所示。

b)、RS485接口型變送器用于RS485通訊時的電氣連接方法如下圖所示。

c)、HART協議型變送器與手操器連接的兩種接線方式如下圖所示。


輔助軟件
a)、RS485接口型變送器軟件
MS Setonline軟件
通過RS232/485轉換模塊,用于對RS485接口型變送器讀取內部基本信息(包括液位量程和溫度補償范圍、版本等),顯示實際液位值、設置新零點、程控設置模擬輸出、設置儀表地址等。

b)、HART協議型變送器軟件
MS-C100A軟件
通過MS-HART375轉換模塊,客戶可對HART協議型變送器進行軟件調試及校準。

應用示例



選型指南
|
MPM4700 |
型智能液位變送器 |
||||||
|
量程 |
測量范圍(mH2O) |
||||||
|
[0~XmH2O]L |
X為實際所需量程,L:為電纜線長度,L-X=(1~2)m |
||||||
|
代號 |
輸出信號 |
||||||
|
E |
4~20mADC |
||||||
|
R4 |
RS485通訊接口 |
||||||
|
H |
HARTâ通信協議 |
||||||
|
代號 |
結構材料 |
||||||
|
隔離膜片 |
接口 |
殼體 |
|||||
|
22 |
不銹鋼316L |
不銹鋼 |
不銹鋼 |
||||
|
24 |
不銹鋼316L |
不銹鋼316L |
不銹鋼316L |
||||
|
代號 |
附加功能 |
||||||
|
C1 |
M20×1.5外螺紋壓力接口,端面密封 |
||||||
|
C5 |
M20×1.5外螺紋壓力接口,水線密封 |
||||||
|
Y |
接線盒 |
||||||
|
F1 |
固定法蘭 |
||||||
|
MPM4700 |
[0~10mH2O] |
ER4 |
22 |
Y |
完整的型號規格 |
||
選型提示
1、電纜材質在未特殊注明要求的情況下,按聚乙烯供貨。
2、特殊要求,敬請與本公司商洽,并在訂單中予以注明。
下一篇:浮標液位計的工作原理及結構
版權所有 Copyright(©)2009-2011 江蘇力科儀表有限公司
電話號碼:0517-86909222 商務熱線:15305232668 傳真:0517-86909221
地址:江蘇省金湖縣工業園
技術支持:易品網站建設專家 蘇ICP備13047422號-1